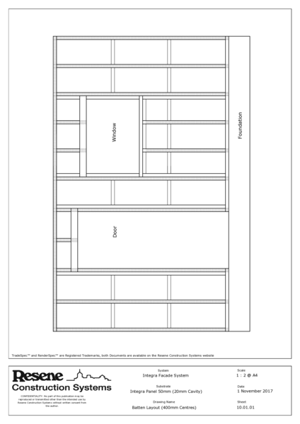
Batten Layout
Batten Layout (600mm Centres)Batten Layout (400mm Centres)Panel InformationIsometric (600 Centers)Isometric (600 Centers)Isometric (400 Centers)Isometric (400 Centers)Isometric Cross Section
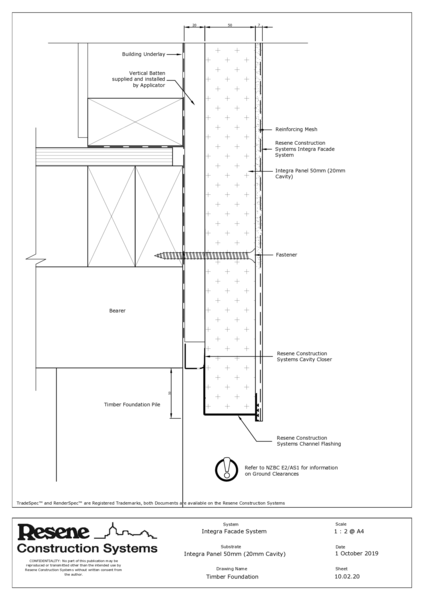
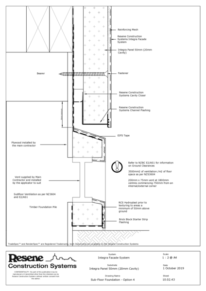
Foundation Details
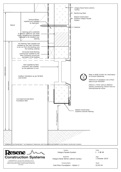
FoundationFoundation with Drain - Option 1Foundation with Drain - Option 2Foundation with Drain - Option 3Insulated Foundation - Option 1Insulated Foundation - Option 2Insulated Foundation - Door SillFoundation EPS Block DetailRecessed Foundation - Option 3Recessed Foundation - Option 5Recessed Foundation - Conc BlockRecessed Foundation - Option 6Timber FoundationSub-Floor Foundation - Option 1Sub-Floor Foundation - Option 2Sub-Floor Foundation - Option 3Sub-Floor Foundation - Option 4Sub-Floor Foundation - Option 5Sub-Floor Foundation - Option 6Sub-Floor Foundation - Option 7Sub-Floor Foundation - Option 8Concrete Block FoundationMaxraft Floor System - Option 1Maxraft Floor System - Option 2Post DetailPost Detail - Option 2
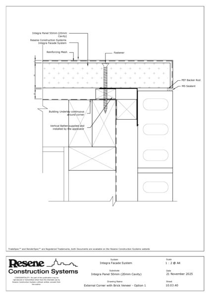
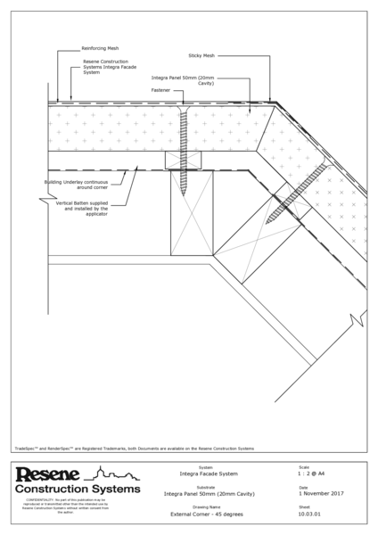
External Corners
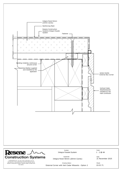
External CornerExternal Corner - 45 degreesExternal Corner- RoundedExternal Corner GIB FirewallExternal Corner with Weatherboard - Option 1External Corner with Weatherboard - Option 2External Corner with Masonry Block - Option 1External Corner with Masonry Block - Option 2External Corner with Masonry Block - Option 3External Corner with Masonry Block Firewall - Option 1External Corner with Masonry Block Firewall - Option 2External Corner with Fibre Cement SheetExternal Corner with Fibre Cement Sheet - Option 2External Corner with Fibre Cement Sheet - Option 3External Corner to 40mm CavityExternal Corner with Brick Veneer - Option 1External Corner with Precast PanelExternal Corner with Stone VeneerExternal Corner with Vert Cedar Wboards - Option 1External Corner with Vert Cedar Wboards - Option 2External Corner with Vert Cedar Wboards - Option 3External Corner with Horizontal Cedar WeatherboardsExternal Corner with Direct Fixed EIFSExternal Corner to EIFS on CavityExternal Corner with Graphex Masonry OverlayExternal Corner with Profiled Metal CladdingExternal Corner with Vertical Profiled CladdingExternal Corner with Aluminium Composite Panel
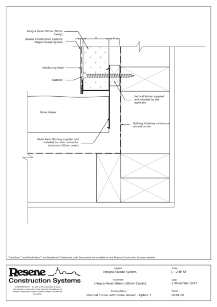
Internal Corners
Internal CornerInternal Corner - 135 degreesInternal Corner (Seismic Joint)Internal Corner with Weatherboard - Option 1Internal Corner with Weatherboard - Option 2Internal Corner with Weatherboard - Option 3Internal Corner with Masonry BlockInternal Corner with Fibre Cement SheetInternal Corner with 40mm CavityInternal Corner with Brick Veneer - Option 1Internal Corner with Brick Veneer - Option 2Internal Corner with Precast PanelInternal Corner with ICF Eco-BlockInternal Corner with Stone Veneer - Option 1Internal Corner with Stone Veneer - Option 2Internal Corner with Vert Cedar Weatherboard - Option 1Internal Corner with Vert Cedar Weatherboard - Option 2Internal Corner with Horizontal Cedar WeatherboardsInternal Corner to Existing EIFSInternal Corner to EIFS on CavityInternal Corner with Graphex Masonry OverlayInternal Corner with Profile Metal CladdingInternal Corner with Aluminium Composite PanelInternal Corner with Vertical Profiled Metal
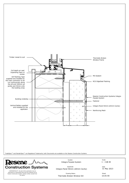
Window/Door Sills
Window SillWindow Sill with MouldingWindow Sill - 20mm RevealTimber Window Sill - Option 1Timber Window Sill - Option 2Timber EuroTech Window SillWindow Sill to NK WindowWindow Face Fixed Jamb and SillWindow Sill Comercial JoineryDoor Sill - Option 1Door Sill - Option 2Door Sill - Option 3Door Sill in a Foundation Recess - Option 1Door Sill in a Foundation Recess - Option 2Thermally Broken Window Sill
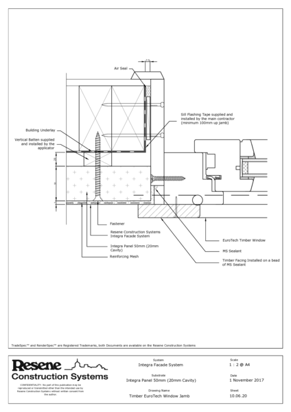
Window/Door Jambs
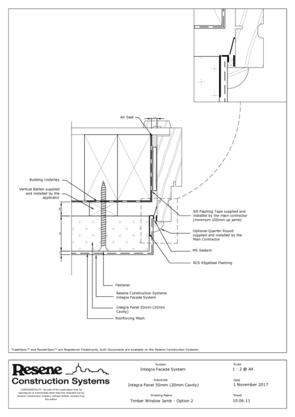
Window JambWindow Jamb with MouldingWindow Jamb - 20mm RevealTimber Window Jamb - Option 1Timber Window Jamb - Option 2Timber EuroTech Window JambWindow Jamb to NK WindowGarage Door Jamb - Option 1Garage Door Jamb - Option 2Garage Door Jamb - Option 3Garage Door Jamb - Option 4Window Jamb Comercial JoineryInternal Corner to Window Jamb - Option 1Internal Corner to Window Jamb - Option 2Internal Corner to Window Jamb - Option 3Window Jamb midway junction with other claddingWindow Isometric (Wb Above)Thermally Broken Window Jamb
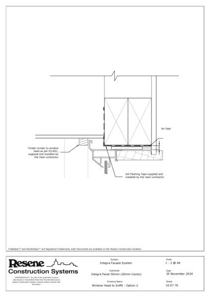
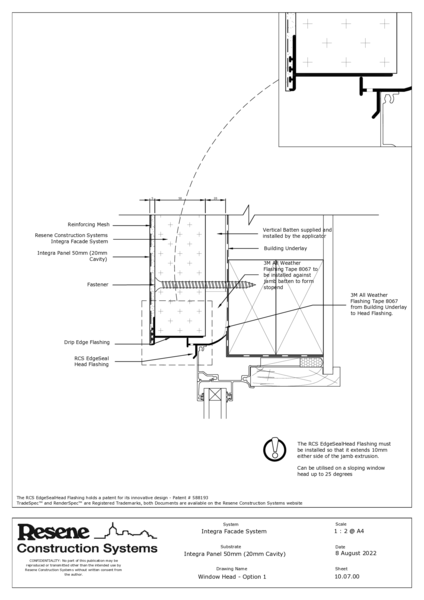
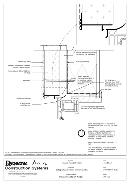
Window/Door Heads
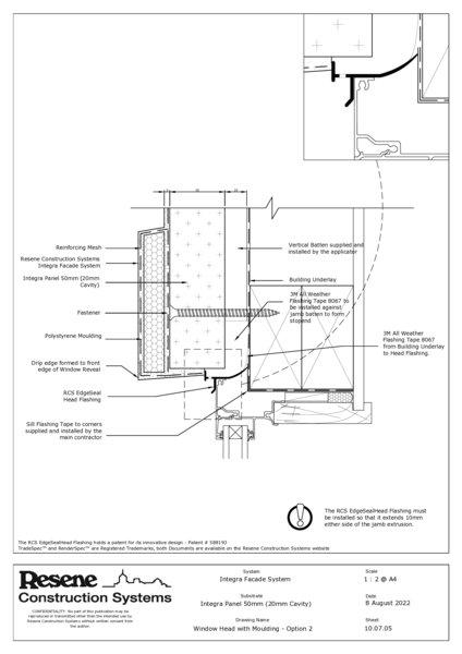
Window Head - Option 1Window Head - Option 2Window Head - Option 3Window Head with Flashing UpstandsWindow Head with Moulding - Option 1Window Head with Moulding - Option 2Window Head with Timber MouldingRaking Window HeadRaking Window Head PeakTimber Window Head - Option 1Timber Window Head - Option 2Timber Window Head - Option 3Timber EuroTech Window HeadWindow Head to NK WindowGarage Door Head - Option 1Garage Door Head - Option 2Garage Door Head - Option 3Garage Door Head - Option 4Window Head Comercial JoineryWindow Face Fixed HeadWindow Head with Weatherboard AboveWindow Head to Soffit - Option 1Window Head to Soffit - Option 2Window Head to Soffit - Option 3Thermally Broken Window Head
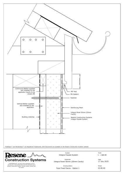
Soffit/Fascia Details
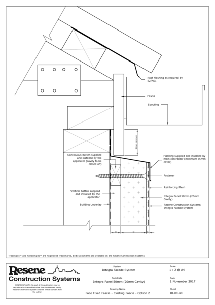
SoffitVentilated Soffit - Option 1Ventilated Soffit - Option 2Soffit Edge - Option 1Soffit Edge - Option 2Soffit Edge - Option 3Soffit Edge - Option 4Soffit Edge - Option 5Soffit Edge or Boxed Beam - Option 1Soffit Edge or Boxed Beam - Option 2Soffit Edge or Boxed Beam - Option 3Raking Soffit - Option 1Raking Soffit - Option 2Raking Soffit - Option 3Raking Soffit - Option 4Raking Soffit - Option 5Sloping SoffitFace Fixed Fascia - Option 1Face Fixed Fascia - Option 2Face Fixed Fascia - Option 3Face Fixed Fascia - Option 4Face Fixed Fascia - Option 5Face Fixed Fascia - Option 6Face Fixed Fascia - Existing Fasica - Option 1Face Fixed Fascia - Existing Fascia - Option 2Face Fixed Fascia - Membrane RoofFascia Transition Tray - CornerFascia Transition Tray - In LineFascia Transition Tray - In Line - Option 1Fascia Transition Tray - Corner IsometricFascia Transition Tray - In Line IsometricFascia Transition Tray - In Line Isometric - Option 2
Roof Apron/Kickout Details
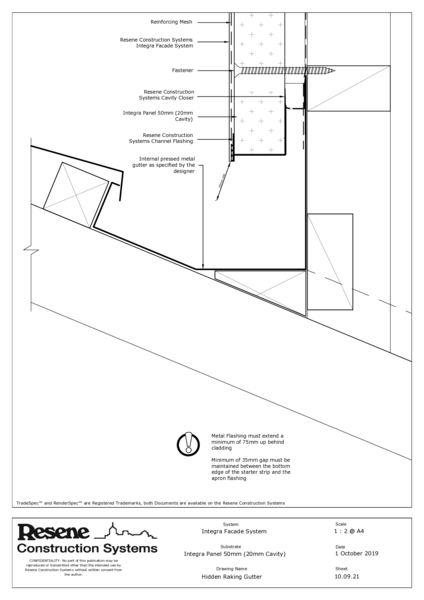
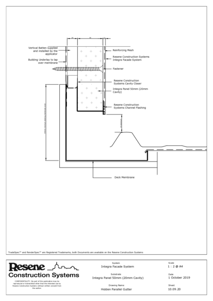
Roof ApronRoof Apron with Angled ChannelRoof Apron - HorizontalRoof Kickout DiverterRoof Kickout Diverter with Cover FlashingRoof Kickout Diverter with Face Fixed FasciaApron to Raking BargeRaking Apron to Barge - Option 1Raking Apron to Barge - Option 2Raking Apron to Barge - Option 3Hidden Parallel GutterHidden Raking GutterHidden Gutter with Tile RoofRoof Detail (Chimney through Roof)Barge - Option 1Barge - Option 2
Vertical Joint Junctions
Vertical Control Joint - Option 1Vertical Control Joint - Option 2Vertical Control Joint (Fire Break)Vertical Junction with Weatherboard - Option 1Vertical Junction with Weatherboard - Option 2Vertical Junction with Weatherboard - Option 3Vertical Junction with Metal CladdingVertical Junction with Fibre Cement SheetVertical Junction with Aluminium Composite PanelVertical Junction with Concrete Block - Option 1Vertical Junction with Concrete Block - Option 2Vertical Junction with Brick - Option 1Vertical Junction with Brick - Option 2Vertical Junction with Precast PanelVertical Junction with Stone - Option 1Vertical Junction with Stone - Option 2Vertical Junction with LiteRockVertical Junction with Exsisting EIFSVertical Junction with Vertical Cedar WeatherboardsVertical Junction with Integra on 40mm Cavity
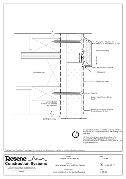
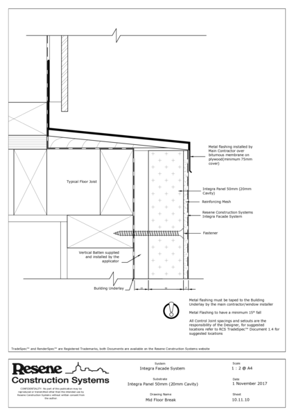
Horizontal Joint Junctions
Horizontal Control JointHorizontal Control Joint with MouldingMid Floor BreakHorizontal Drainage Joint - Option 1Horizontal Drainage Joint - Option 2Horizontal Drainage Joint with MouldingHorizontal Drainage Joint (Fire Break)Horizontal Junction with Weatherboard Above - Option 1Horizontal Junction with Weatherboard Above - Option 2Horizontal Junction with Weatherboard Above - Option 3Horizontal Junction with Weatherboard BelowHorizontal Junction with Concrete Block - Option 1Horizontal Junction with Concrete Block - Option 2Horizontal Junction with Concrete Block - Option 3Horizontal Junction with Brick - Option 1Horizontal Junction with Brick - Option 2Horizontal Junction with Stone - Option 1Horizontal Junction with Stone - Option 2Horizontal Junction with Precast Panel - Option 1Horizontal Junction with Precast Panel - Option 2Horizontal Junction with Fibre Cement Sheet AboveHorizontal Junction with Fibre Cement Sheet BelowHorizontal Junction with Vertical Cedar AboveHorizontal Junction with Rusticated Weatherboards Avove
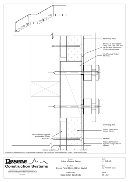
Penetration Details (Meter Boxes. Pipes, Stringers)
Stringer - Block PenetrationLouvre PenetrationLightweight FixingMeter Box Penetration - Option 1Meter Box Penetration - Option 2Pipe PenetrationFan VentTap Fitting DetailLight Fixing DetailGlass Button BalustradeHeatpump PenetrationHWC Bracket FixingMetal Bracket for Beam PenetrationMetal Bracket for Horizontal BattenSteel Box-Section PenetrationMid-Wall Moulding (capped)Timber Gable VentVentec VentRebate
Balustrade/Parapets/Saddles
Metal Parapet Capping - Option 1Metal Parapet Capping - Option 2Maintainable Balustrade - 3DMaintainable Balustrade (inline wall) - 3DMaintainable BalustradeMaintainable ParapetSaddle Flashing (Middle of adjoining wall) - Option 1Saddle Flashing (Middle of adjoining wall) - Option 2Saddle Flashing (Inline Wall)Saddle Flashing (Inline end of adjoining wall)Chimney Breast
Deck Details
Deck ClearanceDeck Drainage - OverflowDeck Drainage - Rainwater HeadCantilevered Slatted DeckNon-Cantilevered Slatted DeckDeck Detail above sub-floorEnclosed Deck